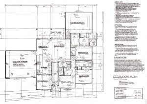
371 Road 6604 Floor Plan